Architekturbüro Abraham
 
Menu


Home

Architektur
Projektsteuerung

Brandschutz

Team

Partnerbüros
Impressum






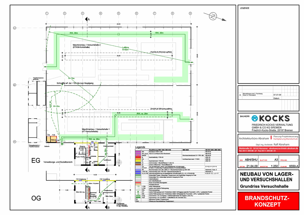
Brandschutz - Brandschutzkonzepte

Projekt:

Neubau einer Lager- und einer Versuchshalle

Bauherr:

Friedrich Kocks GmbH

Zeitraum:

2009

Bundesland:

Bremen

Planung:

Architekturbüro Christoph und Schwöbbermeyer, Hannover

Status/Rolle:

Fachplaner vorbeugender Brandschutz



Projektbeschreibung:
Die Friedrich Kocks GmbH ist ein weltweit tätiger Produzent von Walzwerksanlagen zur Herstellung von Metallrohren, -drähten und -stäben. Erstellt wurde ein Brandschutzgutachten für den Neubau einer Lagerhalle mit einer Grundfläche von 1.575m² sowie einer Versuchshalle mit einer Grundfläche von 2.100m² in Stahlbauweise.

Erbrachte Leistungen:

 

Projektsteuerung

 

Grundlagen

 

Planung

 

Ausschreibung

 

Objektüberwachung

X

Fachplanung Brandschutz

 

Objektüberwachung Brandschutz