Architekturbüro Abraham
 
Menu


Home

Architektur
Projektsteuerung

Brandschutz

Team

Partnerbüros
Impressum






Brandschutz - Brandschutzkonzept, Objektüberwachung

Projekt:

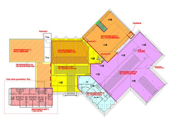
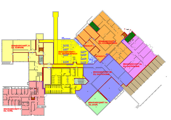
Brandschutzertüchtigung der Raststätte Kassel Ost

Auftraggeber:

Autobahn Tank & Rast GmbH

Bauvolumen:

ca. 8.000 qm, 500.000 €

Zeitraum:

2007-2009

Status/Rolle:

Architekt, Fachplaner Brandschutz, Objektüberwachung



Projektbeschreibung:
Um brandschutztechnische Mängel am Bestand der Raststätte Kassel Ost (mit Hotel und Tagungsstätte) zu beheben, wurde von mir ein Brandschutzkonzept erstellt und mit den Ämtern abgestimmt. Nach der anschließenden Planungs- und Ausschreibungsphase folgte die bauliche Umsetzung, die ich als Architekt und Fachbauleiter Brandschutz überwachte.

Erbrachte Leistungen:

 

Projektsteuerung

X

Grundlagen

X

Planung

X

Ausschreibung

X

Objektüberwachung

X

Fachplanung Brandschutz

X

Objektüberwachung Brandschutz